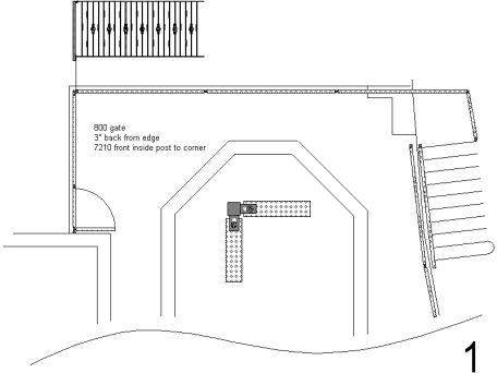
All our gates start on the drawing board. here we can meld ideas to produce a graphical representation for customer approval before work begins. At this stage we can scale features to existing landscaping and finalise component design .
ff
f
     
     
     
     
a
aa
b
c